Ingatlan Televízió
Ingatlan Televízió
további hirdetések
adatlap bezárása

Siófok 
 

Hivatkozási szám: 5829159
Ingatlan adatai
Irányár: 169 000 000 Ft
Típus: lakás (újépítésű)
Kategória: eladó
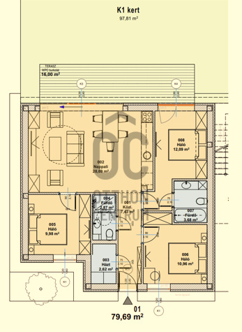
Alapterület: 80 m2
Fűtés: -
Állapota: új
Szobák száma: 4
Építés éve: 2026
Szintek száma: -
Részletes leírás
Projekt bemutatása

Élj Siófokon! - Sóstói lakások- prémium minőség:
Siófok kedvelt Sóstó városrészében új építésű lakásokat ajánlok figyelmetekbe: prémium minőségben 2026-06-30-i átadással! Kiváló lokáció, magas műszaki tartalom!
2025-2026-ban megépülő új, 7 lakásos lakóépület lakásait kínálom megvételre. A ,, Blue lake \\\" elnevezés a csodálatos Balaton közelségére utal.
A társasházról:
Siófok kedvelt Sóstó városrészében eladó 7 új építésű társasházi lakás. A társasház tégla falazatú, homlokzata hőszigetelt, fűtése-hűtése, melegvíz-ellátás H-tarifával támogatott hőszivattyúról megoldott, melynek hőleadója padlófűtés, illetve mennyezeti hűtés.
A ház a mai kor elvárásainak megfelelően természetesen MEDENCÉS.
A projekt keretében 3 földszinti, 3 I. emeleti és egy II. emeleti loft lakás került kialakításra. Az üdülő övezet új építésű egységes épített környezete biztonságot ad.
A jól átgondolt koncepcióhoz modern kivitelezés társul – az épület kertre néző, nem az az utcafrontra, így biztosítva a kilátást minden lakásból a ligetes környékre, ahol már érezhető a Balaton közelsége.
A földszinti lakások közül 2 kertkapcsolatos, az emeleti lakások pedig erkélyesek. Az épület közelsége a Balatonhoz 800 méter,10 perc sétával minden évszakban könnyen megközelíthető a Balaton part.
A társasházban található lakástípusok minden igénynek megfelelő kialakítással bírnak. A földszinten kertkapcsolatos, az 2. emeleti zárószinten pedig nagy teraszos és tágas loft lakás várja tulajdonosát.
Szintenként minden lakástípus fellelhető: A kis lakások kedvelői számára stúdió lakás, nappali+1 hálós kialakítás lehet ideális, de ugyanígy elérhető nagyobb, akár három hálószobás családbarát változat is. Fontos kihangsúlyozni, hogy a kényelem és funkcionalitás egyaránt fontos maradt. A loft lakások egyik legjobb tulajdonsága, hogy az ablakok óriásiak, így a nyitott elrendezéssel együtt rendkívül fényes az élettér.
A lakások mellé megvásárolható parkolók és tárolók a ház délnyugati oldalán kerültek elhelyezésre.
5 nyitott beálló kapcsolódik az épülethez.
A lakások belső műszaki felszereltsége megfelel a mai követelményeknek és kényelmi elvárásoknak. A hőszivattyús hűtő-fűtő berendezés egy már jól bevált, energetikailag kifejezetten modern megoldás, mely télen és nyáron is kellemes hőérzetet biztosít és akár távolról is vezérelhető. A lakásokban padlófűtés ill. mennyezeti hűtés kerül kiépítésre, szabályzásuk 1 db termosztáttal megoldott, mely a műszaki tartalom részét képezi.

Mindenképpen vonzerőnek számít az a zárt terület, mely kizárólag ehhez a társasházhoz tartozik, medencével.
További adatok
Telekterület: -
Kert mérete: -
Erkély mérete: 16 m2
Felszereltség: -
Parkolás: -
Kilátás: kertre néző
Egyéb extrák:  
Hirdető adatai
Hirdető neve: Otthon Centrum
Kapcsolattartó: Takács Anna
Hirdető telefonszáma: +36 70 461 9421
Honlap: -
 
Üzenetet küldhet a hirdetőnek, árajánlatot tehet az ingatlanra:
Az Ön neve:
Az Ön e-mail címe:
Üzenet: