Ingatlan Televízió
Ingatlan Televízió
további hirdetések
adatlap bezárása

Salgótarján 
 

Hivatkozási szám: 5828361
Ingatlan adatai
Irányár: 25 000 000 Ft
Típus: kereskedelmi/ipari ingatlan
Kategória: eladó
Alapterület: 113 m2
Fűtés: gáz (konvektor)
Állapota: felújítást igényel
Szobák száma: -
Építés éve: 1955
Szintek száma: -
Részletes leírás
Befektetők, vállalkozók figyelem!
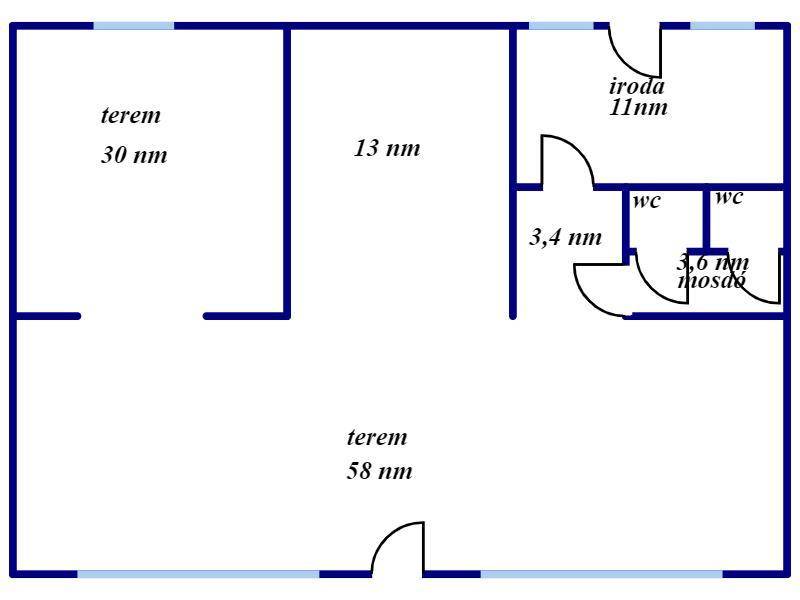
Eladó egy 113 m?-es üzlethelyiség Salgótarjánban, a frekventált Vásártéren.
Az ingatlan a földszinten található, közvetlenül az utcáról nyíló bejárattal.
Az ingatlan több helyiséggel rendelkezik, köztük egy 58 m?-es, tágas üzlettérrel, irodával, mosdókkal és tárolóval.
Két bejárata, könnyű megközelíthetősége és sokoldalú hasznosíthatósága miatt, kiváló választás üzletnek, irodának vagy befektetésnek.
Teljes közműves és részben alápincézett ingatlan.
Per- és tehermentes, azonnal birtokba vehető!
Az adásvételi szerződés megkötéséhez igény szerint megbízható ügyvédi közreműködést biztosítunk, és segítséget nyújtunk az adásvételhez kapcsolódó ügyek intézéséhez.

Referencia szám: M310753-ITV
További adatok
Telekterület: -
Kert mérete: -
Erkély mérete: -
Felszereltség: -
Parkolás: -
Kilátás: -
Egyéb extrák:  
Hirdető adatai
Hirdető neve: otpip.hu - Eger Kertész utca 84 - OTP Ingatlanpont Iroda
Kapcsolattartó: Mattyasovszky Nauzika
Hirdető telefonszáma: +36-70-752-5659
Honlap: -
 
Üzenetet küldhet a hirdetőnek, árajánlatot tehet az ingatlanra:
Az Ön neve:
Az Ön e-mail címe:
Üzenet: