Ingatlan Televízió
Ingatlan Televízió
további hirdetések
adatlap bezárása

Cegléd 
 

Hivatkozási szám: 5828072
Ingatlan adatai
Irányár: 52 500 000 Ft
Típus: ház
Kategória: eladó
Alapterület: 74 m2
Fűtés: gáz (konvektor)
Állapota: felújított
Szobák száma: 2+1
Építés éve: 1960
Szintek száma: 1
Részletes leírás
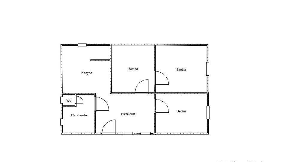
Cegléden, csendes környezetben eladó egy 74 négyzetméteres családi ház, 406 m2-es telken! Az ingatlan vegyes falazatú, elrendezése praktikus. Megtalálható benne előszoba, konyha, fürdőszoba külön wc-vel, nappali és két szoba. A fűtést gázkonvektor biztosítja és hűtő-fűtő klima is beszerelésre került, a maximális komfort érdekében. Az ingatlan minden közművel ellátott. A környék nyugodt és csendes, mégis minden elérhető távolságra van: óvoda, iskola, kórház és bevásárlási lehetőségek. Az Otp Ingatlanpont teljes körű ügyintézéssel áll az eladók és a vevők rendelkezésére! Az adásvételi szerződéshez megbízható ügyvédi közreműködést biztosítunk.

Referencia szám: M311524-ITV
További adatok
Telekterület: 406 m2
Kert mérete: -
Erkély mérete: -
Felszereltség: -
Parkolás: lakáshoz van kültéri parkoló
Kilátás: -
Egyéb extrák:  
Hirdető adatai
Hirdető neve: otpip.hu - Albertirsa Pesti út 46 - OTP Ingatlanpont Iroda
Kapcsolattartó: Jancsovics-Andó Bernadett
Hirdető telefonszáma: +36703582072
Honlap: -
 
Üzenetet küldhet a hirdetőnek, árajánlatot tehet az ingatlanra:
Az Ön neve:
Az Ön e-mail címe:
Üzenet: