Ingatlan Televízió
Ingatlan Televízió
további hirdetések
adatlap bezárása

Budapest, XI.kerület 
 

Hivatkozási szám: 5827072
Ingatlan adatai
Irányár: 150 000 000 Ft
Típus: kereskedelmi/ipari ingatlan
Kategória: eladó
Alapterület: 150 m2
Fűtés: -
Állapota: -
Szobák száma: -
Építés éve: 2005
Szintek száma: -
Részletes leírás
turisztikai, egészségügyi vagy sport létesítményt szeretne, ami könnyen megközelíthető tágas és irodát is kialakíthat benne?
Akkor ezt a lehetőséget mindenképp érdemes átnézni!

Logisztikai szempontból Buda legjobb részén az M1-M7 kivezető és az Egér út közötti részen található ez a 4750 m2 alapterületű.

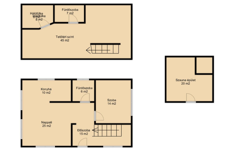
A telken áll egy 2 szintes kívül jó állapotú, belül felújítandó összesen 120 m2 alapterületű ház ami a 2000-es években épült. Ideális lehet irodának vagy szálláshelynek. Tartozik hozzá egy 30 m2 alapterületű kis ház ami szintén kialakítható irodának vagy műhelynek és további 2 épület c.a 40 m2, amelyek könnyen műhellyé vagy garázzsá alakíthatóak.

Beépíthetősége: 5%
Csak csendes és nem szennyező tevékenység végezhető. Ipari gyártás nem lehetséges.

Felhasználhatósága:

- lakhatás
- sport központ
- egészségügyi központ
- turisztikai célra

Az aszfalt útról 50-100 méter széles murvás úton megközelíthető. Víz, villany van az ingatlanban. Gáz nincs bevezetve (gáz tartályokkal volt korábban megoldva).

Fontos!

A terület osztatlan közös tulajdon (belterület). Összesen 12 317 m2, ebből 4 750 m2 eladó és 3 másik tulajdonos társ van az ügyvédi megosztási szerződésben.

Az autópálya megközelítése 3 perc autóval. Hallani lehet az autópálya zaját, viszont a zajfal miatt nem zavaró.

Amennyiben látja cége jövőjét ezen a területen, hívjon telefonon időpontért egy személyes bemutatóra!
További adatok
Telekterület: -
Kert mérete: -
Erkély mérete: -
Felszereltség: -
Parkolás: -
Kilátás: -
Egyéb extrák:  
Hirdető adatai
Hirdető neve: Otthon Centrum
Kapcsolattartó: Benkő Szilamér
Hirdető telefonszáma: +36 70 469 3651
Honlap: -
 
Üzenetet küldhet a hirdetőnek, árajánlatot tehet az ingatlanra:
Az Ön neve:
Az Ön e-mail címe:
Üzenet: