Ingatlan Televízió
Ingatlan Televízió
további hirdetések
adatlap bezárása

Harkány 
 

Hivatkozási szám: 5826736
Ingatlan adatai
Irányár: 26 700 000 Ft
Típus: telek
Kategória: eladó
Alapterület: -
Fűtés: -
Állapota: -
Szobák száma: -
Építés éve: -
Szintek száma: -
Részletes leírás
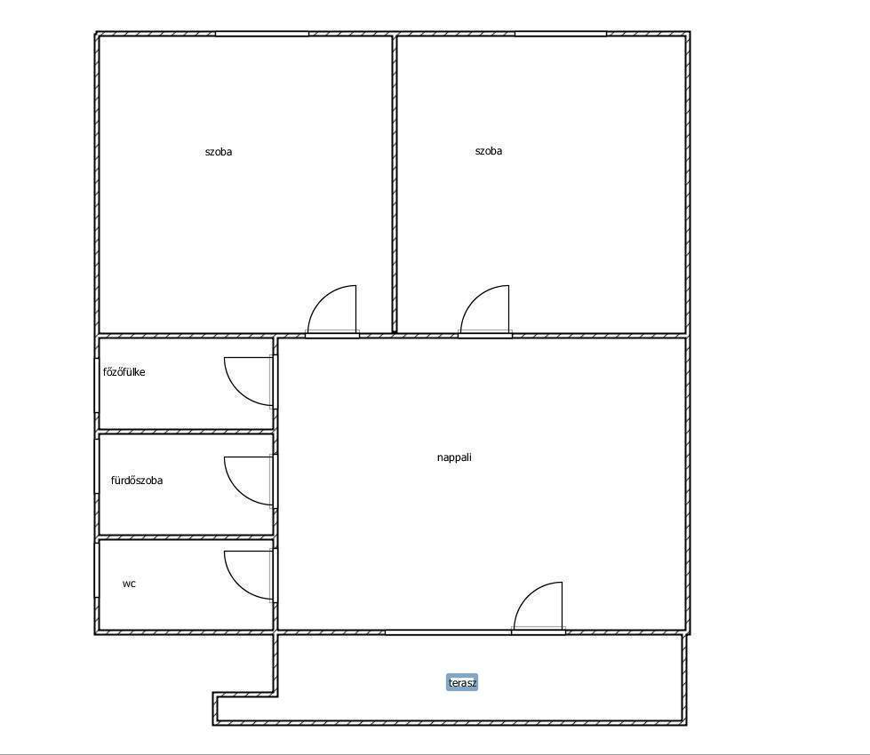
Harkányban csendes üdülőövezetben elhelyezkedő, kétszintes, iker hétvégi ház eladó. A 222 nm-es telken álló téglaépítésű ingatlan földszintjén nappali, két szoba, főzőfülke, fürdőszoba, WC és egy fedett terasz található. Az emeletre fa lépcső vezet, ahol egy erkélyes szoba kapott helyet. A ház összkomfortos, télen-nyáron lakható. 2024-ben új kondenzációs gázkazán került beépítésre radiátoros hőleadással. A terasz ajtaja és ablaka műanyag hőszigetelt, míg a többi nyílászáró régi típusú, dupla fa keretben üvegezett. Az udvaron egy fa kisház található, amely tárolásra szolgál, valamint autóval be lehet állni az udvarba. Az ingatlan körülbelül 10 perc sétára van a Harkányi Gyógy- és Strandfürdőtől. Közeli városok, mint Pécs, Siklós és Villány, kedvező buszközlekedéssel elérhetők.
Ez a ház tökéletes választás lehet azoknak, akik egy kényelmes, nyugodt, hétvégi otthont keresnek Harkány üdülő övezetében. Ha érdekel, szívesen beszélgetünk további részletekről ! Hívj bátran! M311227

Referencia szám: M311227
További adatok
Telekterület: 222 m2
Kert mérete: -
Erkély mérete: -
Felszereltség: -
Parkolás: -
Kilátás: -
Egyéb extrák:  
Hirdető adatai
Hirdető neve: otpip.hu - Pécs Király utca 75 - OTP Ingatlanpont Iroda
Kapcsolattartó: Szabó Ágnes
Hirdető telefonszáma: +36205097862
Honlap: -
 
Üzenetet küldhet a hirdetőnek, árajánlatot tehet az ingatlanra:
Az Ön neve:
Az Ön e-mail címe:
Üzenet: