Ingatlan Televízió
Ingatlan Televízió
további hirdetések
adatlap bezárása

Balatonmáriafürdő 
 

Hivatkozási szám: 5825063
Ingatlan adatai
Irányár: 45 000 000 Ft
Típus: ház
Kategória: eladó
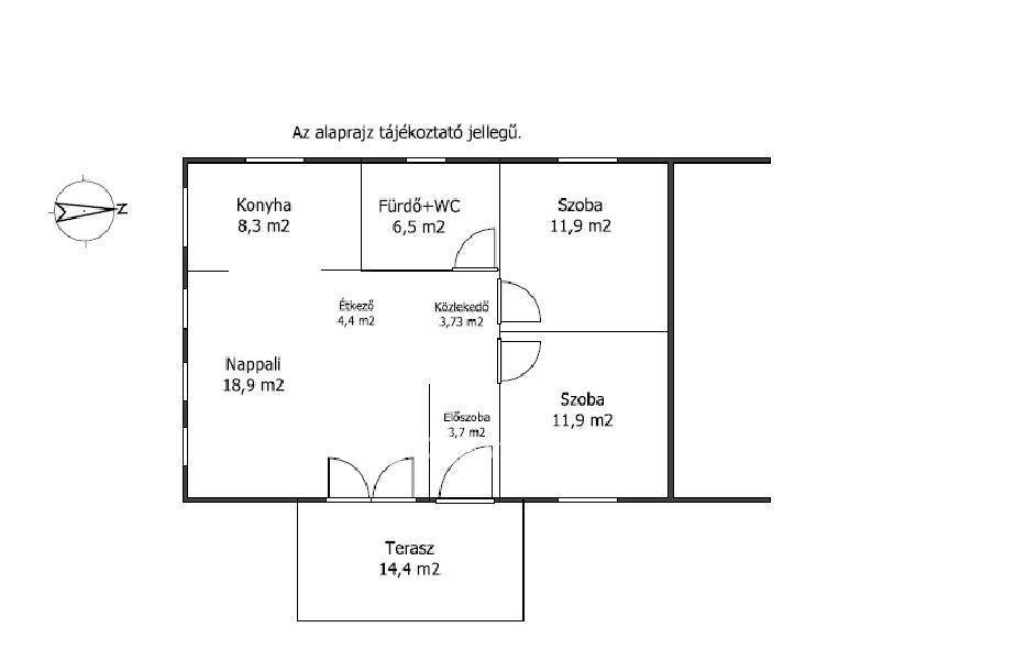
Alapterület: 79 m2
Fűtés: elektromos
Állapota: új
Szobák száma: 1+2
Építés éve: 2024
Szintek száma: 1
Részletes leírás
Könnyűszerkezetes szerkezetkész ikerház fele- BALATONMÁRIAFÜRDŐ FŐUTCÁJÁN -alakítsa saját otthonát, a Balaton közelében:

Csendes, nyugodt környezetben, mégis frekventált helyen kínálunk eladásra egy 79 m2-es ikerházat Balatonmáriafürdőn, 380 m2-es nyeles telken.

Elrendezés:
1 tágas nappali
2 hálószoba
konyha + étkező + előszoba
fürdőszoba WC-vel
udvari parkolási lehetőség
Az ingatlan szerkezetkész állapotú: kívülről minden készen van, belül pedig az új tulajdonosra vár a végső kialakítás: gipszkartonozás, burkolatok, festés és egyéb szakipari munkák. Így teljes mértékben saját igényei szerint formálhatja álmai otthonát vagy nyaralóját.
Közművek: Víz, villany, szennyvíz bekötve a házba. Gázcsonk az utcában.
Tervezett fűtés: elektromos klíma
Építési engedély rendelkezésre áll, használatbavételi engedély még nincs - viszont az egyik legnagyobb előnye éppen az, hogy a belső kialakítás teljes mértékben szabadon választható.
Ideális választás saját otthonnak, nyaralónak vagy befektetésnek a Balaton part közelében. Télen, nyáron programok a településen. A MÓLÓ melletti kikötőből indul hajójárat a Balaton északi városaiba. ( Keszthely, Badacsony...stb) A faluba egyre több a beköltöző. Központjában igényes üzletek, éttermek, híres DISCO, és a még híresebb FLORIDA fagyizó várja a lakókat és a kirándulókat. Kiépített Központi Strandja és szabad strandjai, csónakkikötő és a Nyugati csatorna horgász lehetősége kihagyhatatlan az itt lakók és nyaralók számára.
Ne szalassza el ezt a kivételes lehetőséget, hívjon és tekintse meg személyesen!
Érdeklődni: Otp Ingatlanpont Kft. Pál Miklós 70 3341099

Referencia szám: M304758-ITV
További adatok
Telekterület: 350 m2
Kert mérete: -
Erkély mérete: 14 m2
Felszereltség: -
Parkolás: lakáshoz van kültéri parkoló
Kilátás: -
Egyéb extrák:  
Hirdető adatai
Hirdető neve: otpip.hu - Nagykanizsa Zrínyi Miklós utca 21 - OTP Ingatlanpont Iroda
Kapcsolattartó: Pál Miklós
Hirdető telefonszáma: +36-70-334-1099
Honlap: -
 
Üzenetet küldhet a hirdetőnek, árajánlatot tehet az ingatlanra:
Az Ön neve:
Az Ön e-mail címe:
Üzenet: