Részletes leírás
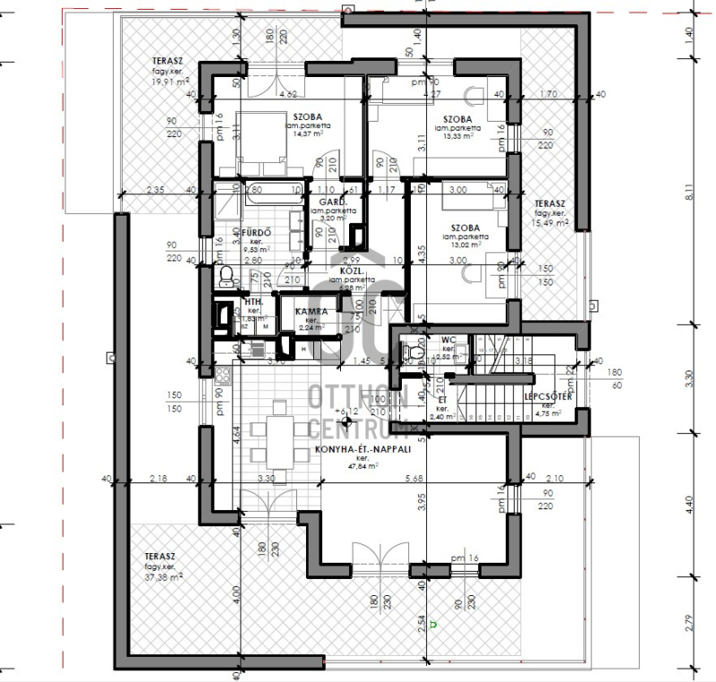
XVI kerület közkedvelt, Zuglóhoz közeli részén eladó új építésű lakások! Egymás mellett épül 2db öt lakásos társasház, egy zöld övezeti új építésű modern környezetben. Ez a penthouse lakás az A épület második emeletén található, összesen négy szobás, óriási tetőteraszokkal rendelkező és panorámás, ez ritkaságnak számít. Ezen az emeleten csak ez az egy lakás van.
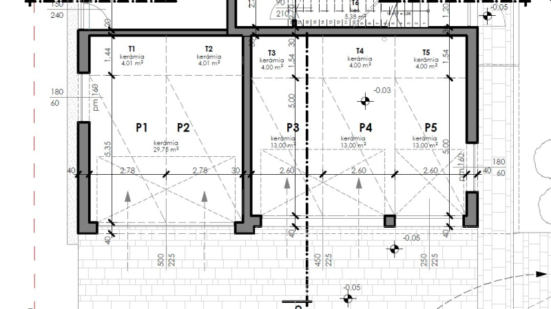
A lakásokhoz külön vásárolható garázsbeálló tárolóval, amiknek az együttes ára 8,5 millió forint. Igény esetén még felszíni, nyitott beálló vásárlására is van lehetőség, ennek ára 4 millió forint.
Főbb paraméterek:
- tégla építés
- modern, műanyag 3 rétegű nyílászárók
- hőszivattyús fűtés
- választható burkolatok, szaniterek
A házak 2026 IV. negyedévére készülnek el, nagy előny, hogy a vevő a saját ízlése és igénye szerint alakíthatja ki új otthonát.
Részletesebb információkért, részletes műszaki tájékoztatásért keressen bizalommal!