Ingatlan Televízió
Ingatlan Televízió
további hirdetések
adatlap bezárása

Kővágóörs 
 

Hivatkozási szám: 5823893
Ingatlan adatai
Irányár: 44 900 000 Ft
Típus: nyaraló
Kategória: eladó
Alapterület: 75 m2
Fűtés: egyéb
Állapota: felújítást igényel
Szobák száma: 2
Építés éve: -
Szintek száma: -
Részletes leírás
Kővágóörsön, belterületi, központi elhelyezkedéssel találunk rá erre a több, mint százéves kis parasztházra.
Udvara kőfallal szeparált kis birodalom, egy olyan utcácskában, ahol nincsen átmenő forgalom! Aszfaltos útról lekanyarodva 20 métert kell murvás úton megtenni.
A ház, korából adódóan felújítandó, de jelen pillanatban is a legszebb nyaralások helyszíne egy családnak és barátaiknak.
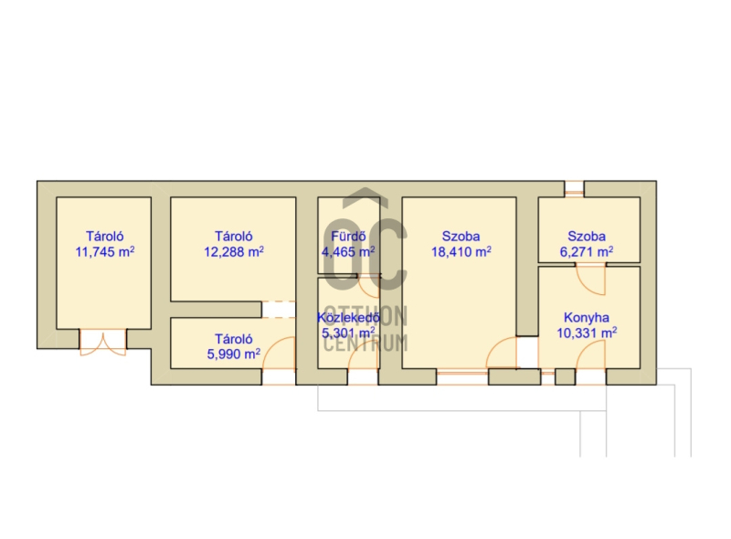
A házhoz tartozó telek 427 nm, a lakóház pedig a tároló melléképületekkel együtt nettó 75 nm. Ez nem változik, ennél nagyobb nem lesz és nem lehet, bár ha kreatívan állunk hozzá, a mostani melléképületekkel könnyedén bővíthetjük ez életteret, hiszen szervesen kapcsolódnak a főépülethez. A telken egy korábban jelen lévő gazdasági épület is jelezve van, amely visszaépíthető.
Kő falazatú, nádtetős épület, amely nem védett, így sokminden alakítható rajta a saját igényekhez mérten.
Padlója jelenleg beton, amely linóleummal fedett, a melegvizet bojler szolgáltatja, fűtéséről régebben a nagyapa által rakott búbos kemence gondoskodott.
Egy nagy lakószoba és egy kisebb hálószoba mellett konyhát, fürdőszobát és 3 tároló helyiséget találunk benne.
Kibővített áram (32 A), vezetékes víz és a telken belül csatorna van.
Ami fontos: \\\"Van vele munka\\\", \\\"Kell rá költeni\\\" ... de ugyanakkor: Autentikus, lelke van, tökéletesen elég egy családnak, a Balaton-felvidék szívében van!
További adatok
Telekterület: 427 m2
Kert mérete: 427 m2
Erkély mérete: -
Felszereltség: -
Parkolás: -
Kilátás: -
Egyéb extrák:  
Hirdető adatai
Hirdető neve: Otthon Centrum
Kapcsolattartó: Csesznák Veronika
Hirdető telefonszáma: +36 70 412 5136
Honlap: -
 
Üzenetet küldhet a hirdetőnek, árajánlatot tehet az ingatlanra:
Az Ön neve:
Az Ön e-mail címe:
Üzenet: