Ingatlan Televízió
Ingatlan Televízió
további hirdetések
adatlap bezárása

Kecskemét 
 

Hivatkozási szám: 5816504
Ingatlan adatai
Irányár: 33 000 000 Ft
Típus: telek
Kategória: eladó
Alapterület: 7 454 m2
Fűtés: -
Állapota: -
Szobák száma: -
Építés éve: -
Szintek száma: -
Részletes leírás
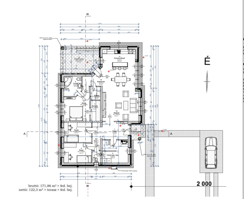
Kecskemét Hetényegyházán építési telek eladó, kész tervekkel, engedélyeztetve.
Főbb jellemzők:
- 7454 nm telek terület
- 5 %-os beépíthetőség
- csendes, erdős környezetben
- aszfaltos úttól 800 m-re
- fúrt kúttal kerül értékesítésre
- meglévő engedélyekkel rendelkezik ( 4 évre szól)
- nappali+3 szobás családi ház teljes tervdokumentációjával
- bruttó 171,86 nm + fedett bejáró
- nettó 122,3 nm +terasz +fedett bejáró
- villany a telek előtt
- gáz a telek előtt

További információkért keressen bizalommal!
További adatok
Telekterület: 7 454 m2
Kert mérete: -
Erkély mérete: -
Felszereltség: -
Parkolás: -
Kilátás: -
Egyéb extrák:  
Hirdető adatai
Hirdető neve: Otthon Centrum
Kapcsolattartó: Boros Julianna
Hirdető telefonszáma: +36 70 388 5866
Honlap: -
 
Üzenetet küldhet a hirdetőnek, árajánlatot tehet az ingatlanra:
Az Ön neve:
Az Ön e-mail címe:
Üzenet: