Ingatlan Televízió
Ingatlan Televízió
további hirdetések
adatlap bezárása

Zalaegerszeg 
 

Hivatkozási szám: 5814686
Ingatlan adatai
Irányár: 50 700 000 Ft
Típus: kereskedelmi/ipari ingatlan
Kategória: eladó
Alapterület: 145 m2
Fűtés: -
Állapota: -
Szobák száma: -
Építés éve: 1968
Szintek száma: -
Részletes leírás
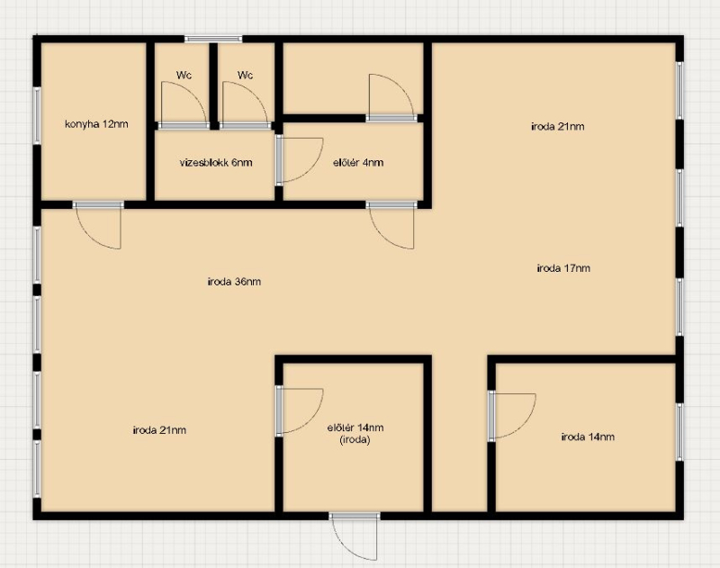
Zalaegerszeg belvárosában, egy rendkívül kedvező lokalizációval rendelkező ingatlant kínálok eladásra, (azonnal birtokba vehető), amely ideális választás lehet üzleti célokra, akár befektetésre. A földszinten található ingatlan 145 négyzetméteres alapterülettel rendelkezik, és kiváló állapotban várja új tulajdonosát. A ház központi fűtéses rendszerrel működik és hűtő-fűtő (6db) klímával felszerelt, melyek biztosítják a kellemes hőmérsékletet az év minden hónapjában. Az épületben porta szolgálat teszi lehetővé a megfelelő biztonságot, illetve lift is rendelkezésre áll. Az irodahelyiség a város szívében található, így könnyen megközelíthető mind gépjárművel, mind tömegközlekedéssel. Az építmény előtti parkolási lehetőségek adottak, és egy saját parkolóhely biztosított a belső udvari részben. A környéken található számos üzlet, étterem és szolgáltatás, melyek megkönnyítik a mindennapi életet és a munkahelyi környezetet. A közvetlen szomszédságban található parkok és zöld területek lehetőséget nyújtanak a pihenésre és a szabadidős tevékenységekre is, így a munka és a kikapcsolódás egyensúlya könnyedén megvalósítható. A belvárosi környezet nemcsak a könnyű megközelíthetőséget biztosítja, hanem egyben biztonságos és csendes helyszínt is nyújt az üzleti tevékenységek számára. Az ingatlan elhelyezkedése lehetővé teszi, hogy ügyfelei könnyen rátaláljanak, és a város vibráló élete folyamatos inspirációt adjon az Ön vállalkozásának. Az iroda jelenlegi funkciója optimálisan alkalmas különféle üzleti tevékenységek lebonyolítására, de a jövőben más funkciók számára is könnyen átalakítható (pl:bemutatóterem, oktatóterem, orvosi szolgáltatás, előadások lebonyolítása). Az épület külső szigetelése 2024-ben megtörtént (15cm). Nemcsak egy kiváló helyszínt biztosít vállalkozása számára, hanem egy olyan közösséget is, amely támogató és dinamikus. Az itt dolgozók aktívan részt vesznek a város életében, így Ön is részesévé válhat ennek a pezsgő közegnek. Jogviszonyok rendezettek, per-és tehermentes! Amennyiben bármilyen kérdése merülne fel az ingatlannal kapcsolatban és szeretné megtekinteni keressen bizalommal! Szívesen állok rendelkezésére, hogy segítsek Önnek megtalálni a legmegfelelőbb üzleti ingatlant, amely megfelel az elképzeléseinek és igényeinek.
További adatok
Telekterület: -
Kert mérete: -
Erkély mérete: -
Felszereltség: -
Parkolás: -
Kilátás: -
Egyéb extrák:  
Hirdető adatai
Hirdető neve: Otthon Centrum
Kapcsolattartó: Pölhösné Csilla
Hirdető telefonszáma: +36 70 716 8481
Honlap: -
 
Üzenetet küldhet a hirdetőnek, árajánlatot tehet az ingatlanra:
Az Ön neve:
Az Ön e-mail címe:
Üzenet: