Ingatlan Televízió
Ingatlan Televízió
további hirdetések
adatlap bezárása

Gyöngyös 
 

Hivatkozási szám: 5812384
Ingatlan adatai
Irányár: 2 147 483 647 Ft
Típus: kereskedelmi/ipari ingatlan
Kategória: eladó
Alapterület: 9 026 m2
Fűtés: -
Állapota: -
Szobák száma: -
Építés éve: -
Szintek száma: -
Részletes leírás
Az üzleti vállalkozások számára ideális ingatlant kínálunk eladásra Heves vármegyében, Gyöngyös városában, ahol a fejlődés és a lehetőségek határtalanok.
Ezen a 40.000 négyzetméteres telken 9.026 négyzetméternyi ipari csarnokok, raktárak és iroda található, amely jelenlegi állapotában is sokoldalúan hasznosítható, de bővítési lehetőségeket is kínál.

- 40.000 négyzetméter telek terület, nagy része targoncázható útburkolattal
- 9.026 négyzetméter felépítmény, melynek egy része szintén targoncázható acélszerkezetes csarnoképület
- Porta 23 négyzetméter
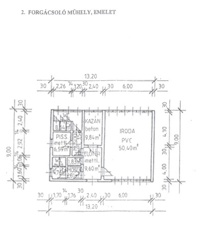
- Forgácsoló műhely 2.376 négyzetméter
- Autóbusz javító műhely, szerelőcsarnok 963 négyzetméter
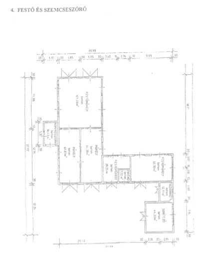
- Festő és szemcseszóró műhely 418 négyzetméter
- Javítóműhely 1.330 négyzetméter
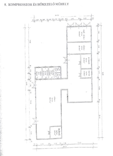
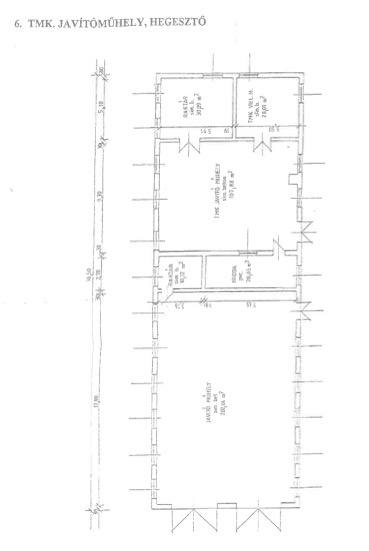
- TMK javítóműhely 404 négyzetméter
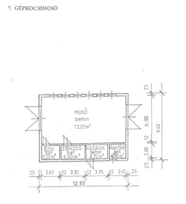
- Gépkocsi mosó 95 négyzetméter
- Gépalkatrész gyártó üzem 896 négyzetméter
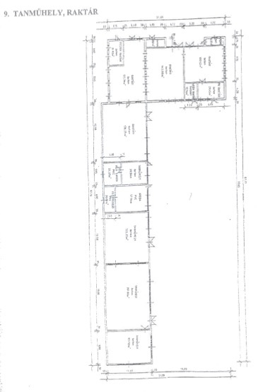
- Tanműhely, raktár 1.243
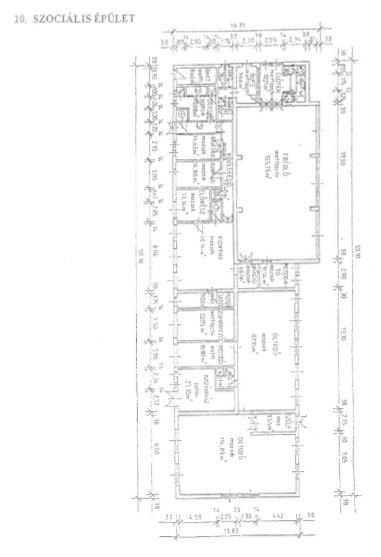
- Szociális épület és műhely 646 négyzetméter
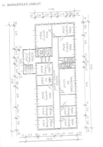
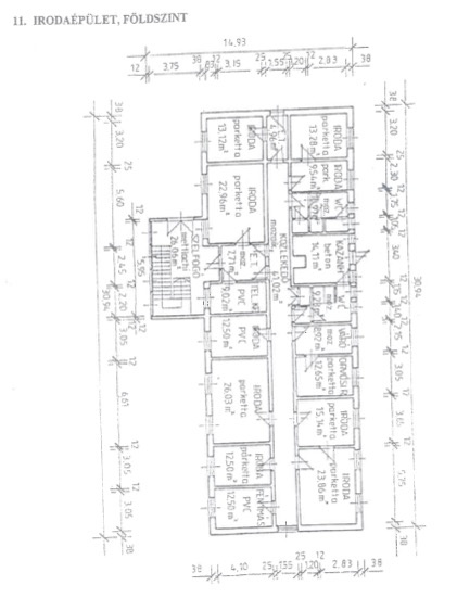
- Irodaház 632 négyzetméter
- Konyha, étkező
- Fürdőszoba
- WC
- 100 kw napelem került telepítésre, mely alkalmas lehet az ingatlan teljes áramellátásának fedezésére.
- A telephely a 3-as főúton számos reklámfelület engedélyével rendelkezik, így led reklámtáblák felhelyezésére is alkalmas.

Azonnal végezhető tevékenységek:
Gépjármű javítás (személy, TGK és autóbusz)
Folyékony festés (gépkocsi, busz, TGK tovább nagyméretű fémek, csarnokváz elemek, egyéb ipari alkatrészek)
Porfestés (kisebb alkatrészek, de hatalmas mennyiségben)
Hegesztés, lakatolás
Fémmegmunkálás, akár gépekkel is
Raktározás
Logisztikai központ

Fejlesztéssel:
Gyártás
Kereskedelmi központ
Kamion parkoló (javítóbázis adott)
Gépjármű flottakezelő cég központja
Kamionmosó

A gépek és a berendezések külön megegyezés tárgya.
Érték és érdek egyeztetés után az épületek külön is megvásárolhatók, illetve a cég is.
Mind egyben, de külön- külön is különböző pályázatokra ad lehetőséget.
A környék adottságai rendkívül kedvezőek, hiszen a közlekedés kitűnő, könnyen megközelíthető.
Közvetlenül a 3-as számú főút mellett helyezkedik el és gyorsan elérhető az autópálya is.
A telek mérete lehetővé teszi a jövőbeli bővítést, így ha Ön olyan ingatlant keres, amely nemcsak a jelenlegi igényeknek felel meg, hanem a jövőbeli terveit is támogatja, akkor ez a lehetőség tökéletes választás lehet.
Az ipari területen elhelyezkedő ingatlanok iránti kereslet folyamatosan növekszik, így a befektetés nem csupán üzleti szempontból, hanem pénzügyi szempontból is kifizetődő.
Amennyiben felkeltette érdeklődését, kérem vegye fel velem a kapcsolatot!

Irodánkban bank független hitel-közvetítéssel, személyi kölcsön ügyintézéssel állunk ügyfeleink rendelkezésére.
A hirdetésben szereplő információkat a megbízótól kaptunk, irodánk azokért felelősséget nem vállal.
További adatok
Telekterület: -
Kert mérete: -
Erkély mérete: -
Felszereltség: -
Parkolás: -
Kilátás: -
Egyéb extrák:  
Hirdető adatai
Hirdető neve: Otthon Centrum
Kapcsolattartó: Simó Zsófia
Hirdető telefonszáma: +36 70 388 6111
Honlap: -
 
Üzenetet küldhet a hirdetőnek, árajánlatot tehet az ingatlanra:
Az Ön neve:
Az Ön e-mail címe:
Üzenet: