Ingatlan Televízió
Ingatlan Televízió
további hirdetések
adatlap bezárása

Gyékényes 
 

Hivatkozási szám: 5812220
Ingatlan adatai
Irányár: 55 000 000 Ft
Típus: nyaraló
Kategória: eladó
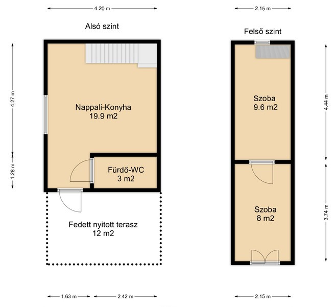
Alapterület: 40 m2
Fűtés: egyéb
Állapota: -
Szobák száma: 2
Építés éve: 1990
Szintek száma: -
Részletes leírás
Megvételre kínálok Dunántúl közkedvelt üdülő övezetében Gyékényesen, egy 40 m2-es felújított nyaralót.
Gyékényes Somogy megyében a horvát határhoz közeli település, Nagykanizsától 30 perc, Csurgótól 10 percnyi autóútra található.
A gyékényesi tavak népszerű az üdülni, horgászni, búvárkodni vagy kikapcsolódni vágyók körében.
A községben iskola, óvoda, gyógyszertár, orvosi rendelő, posta és több élelmiszerbolt, benzinkút található.
Ez az igényesen felújított ház tökéletes választás lehet mindazok számára, akik saját otthonra vágynak, vagy befektetési lehetőséget keresnek.
A felújítás során a villany és vízvezetékek, burkolatok cseréje egyaránt megtörtént.
Műanyag, hőszigetelt üvegezésű nyílászárók kerültek beépítésre, redőnnyel és szúnyoghálóval felszerelve.
A homlokzat külső szigetelést kapott.
A nyaraló tetőszerkezete is cserére került, cserepes lemezfedéssel, melyet magasítással és szigeteléssel láttak el, a belmagasság növelése érdekében.
Az ingatlan alapterülete 40 négyzetméter, az alsó szinten nappali-konyha, fürdőszoba-WC, az emeleten két hálószoba található,
Ideális elrendezést biztosítva a család számára vagy akár vendégek fogadására is.
Saját területén, egy felszíni parkoló tartozik az ingatlanhoz.
A 12 négyzetméteres terasz lehetőséget biztosít a pihenésre, ahol a tóra kitűnő kilátás van a naplementére.
Az ingatlan fűtését és hűtését kettő klímaberendezés biztosítja, melyek kellemes hőmérsékletet biztosítanak a nyári és téli hónapokban.
A ház elhelyezkedése csendes és biztonságos, ideális választás mindazok számára, akik a városi nyüzsgéstől távol, de mégis könnyen megközelíthető helyen szeretnének élni, pihenni.
Gyékényes vonzó lehetőség a természet szerelmeseinek, hiszen a környék csodálatos tájakkal, horgászati lehetőségekkel, strandolással és különböző vízi sportokkal, túraútvonalakkal várja az aktív kikapcsolódásra vágyókat.
A település jól megközelíthető autóval, a közeli főbb közlekedési útvonalaknak köszönhetően pedig a városközpontok is könnyen elérhetők.
A helyi boltok, éttermek és szolgáltatások mind rövid távolságra találhatók, így a mindennapi élet kényelmesen és egyszerűen zajlik. Amennyiben felkeltette érdeklődését ez a kivételes ingatlan, ne habozzon, keressen bizalommal! Készen állok arra, hogy válaszoljak kérdéseire, és segítsek Önnek a legjobb döntés meghozatalában. Az Ön új otthona csak egy hívásnyira van!
További adatok
Telekterület: 50 m2
Kert mérete: 50 m2
Erkély mérete: 12 m2
Felszereltség: -
Parkolás: -
Kilátás: -
Egyéb extrák:  
Hirdető adatai
Hirdető neve: Otthon Centrum
Kapcsolattartó: Vucskó Krisztina
Hirdető telefonszáma: +36 70 716 8171
Honlap: -
 
Üzenetet küldhet a hirdetőnek, árajánlatot tehet az ingatlanra:
Az Ön neve:
Az Ön e-mail címe:
Üzenet: