Ingatlan Televízió
Ingatlan Televízió
további hirdetések
adatlap bezárása

Gyöngyös 
 

Hivatkozási szám: 5804901
Ingatlan adatai
Irányár: 23 000 000 Ft
Típus: kereskedelmi/ipari ingatlan
Kategória: eladó
Alapterület: 67 m2
Fűtés: -
Állapota: -
Szobák száma: -
Építés éve: 1985
Szintek száma: -
Részletes leírás
Gyöngyösön a dombon vár ez a lehetőség!Ne hagyd ki!
Fedezd fel ezt a kivételes lehetőséget Gyöngyös szívében, ahol egy tehermentes, ház várja új tulajdonosát!

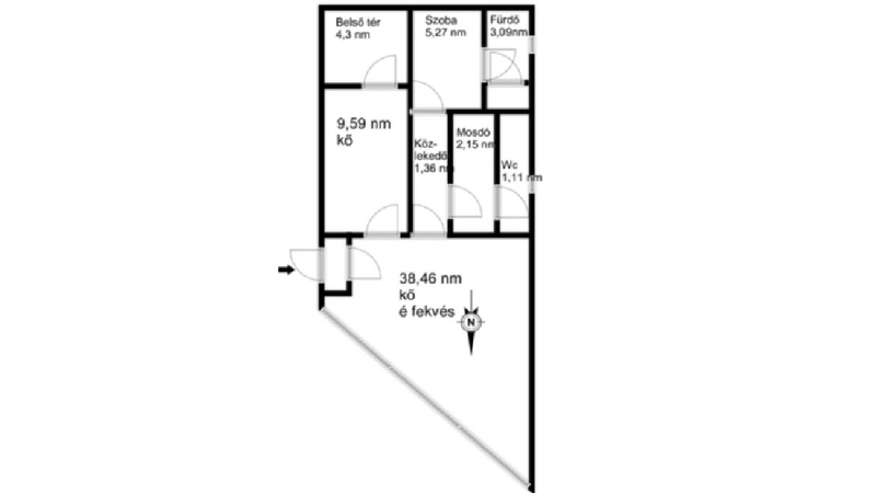
Az ingatlan alapterülete 66,5 nm, így ideális választás lehet számodra, ha üzleti vállalkozás indítását tervezed, vagy befektetési céllal keresel ingatlant.

A házban egy nagy tér van ami 38 nm tágas szoba található, amelyek lehetőséget adnak arra, hogy a saját igényeid szerint alakítsd ki a belső teret.
9,59 nm helység ami jelenleg kozmetikus helység egy 4,3 nm es kis térrel.
5,27 nm helységben egy szolárium gép van, amit szintén igényeid szerint tudsz formálni.

A fürdőszoba egybenyitási lehetőséget kínál, így a felújítás során a legmodernebb megoldásokat is alkalmazhatod.

A környék csendes, barátságos és biztonságos, ideális helyszín a nyugodt munkavégzéshez, de a központi elhelyezkedésnek köszönhetően ez egy felkapott rész.
A Város központ 20 perc sétára érhető el, de helyi járatok közlekedése ezt felgyorsítja és kényelmessé teszi.

Az épület közvetlen környezetében iskola ,fodrászat helyezkedik el,és lakóépületek!

A gáz (cirko) fűtés biztosítja a kellemes hőmérsékletet a hideg téli hónapokban, így a felújítást követően egy igazán komfortos otthont vagy vállalkozást alakíthatsz ki.

Gyöngyös egy felkapott környék, ahol a természet közelsége és a városi élet előnyei egyaránt megtalálhatók.

A város gazdag kulturális programokban, sportolási lehetőségekben, valamint gyönyörű kirándulóhelyekben, így a szabadidőd eltöltése is kellemesen telhet.
Az ingatlan remek választás lehet családoknak, fiatal pároknak, vagy akár befektetőknek is, akik értékesítési céllal keresnek ingatlant. Ne habozz, tedd meg az első lépést álmaid ingatlanához!

Ha bármilyen kérdésed van, vagy szeretnéd megtekinteni ezt a remek lehetőséget, fordulj hozzám bizalommal! A célom, hogy segítsek neked megtalálni a legjobb megoldást az ingatlanpiacon, és hogy a lehető legjobb döntést hozd meg.
További adatok
Telekterület: -
Kert mérete: -
Erkély mérete: -
Felszereltség: -
Parkolás: -
Kilátás: -
Egyéb extrák:  
Hirdető adatai
Hirdető neve: Otthon Centrum
Kapcsolattartó: Nagy Zoltánné Zsani
Hirdető telefonszáma: +36 70 469 3286
Honlap: -
 
Üzenetet küldhet a hirdetőnek, árajánlatot tehet az ingatlanra:
Az Ön neve:
Az Ön e-mail címe:
Üzenet: