Ingatlan Televízió
Ingatlan Televízió
további hirdetések
adatlap bezárása

Siófok 
 

Hivatkozási szám: 5775558
Ingatlan adatai
Irányár: 89 000 000 Ft
Típus: nyaraló
Kategória: eladó
Alapterület: 70 m2
Fűtés: -
Állapota: új
Szobák száma: 4
Építés éve: 2025
Szintek száma: -
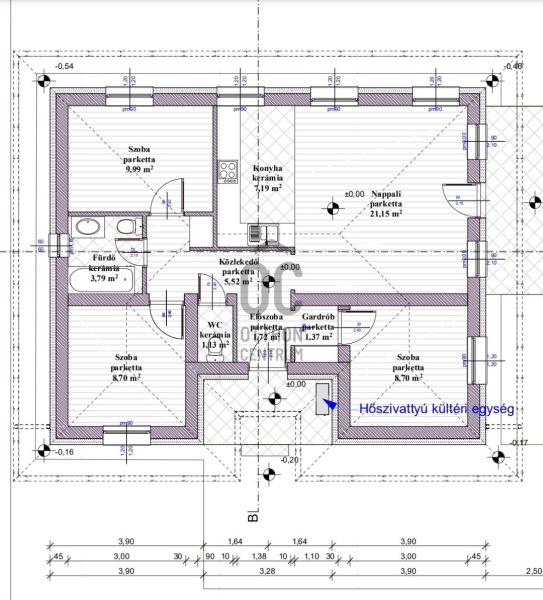
Részletes leírás
Választható megjelenést biztosítunk‼️

Az ingatlan 70 m² bruttó plusz 17,6 m² terasszal rendelkeznek.

Ami három szobát, egy nappalit, konyhát, fürdőszobát, mellékhelyiséget, és egy gardróbot takar.
Különálló épület ami tökéletes nyaralónak, vagy akár családiháznak.
A fűtést hőszivattyús padlófűtés rendszer látja el, amihez \\\"H\\\" órát is biztosítunk a nulla százalékos fűtéshez.
Külön kérésre lehet kérni napelemet is ♻️☀️
Az ingatlan hőszigetelése 15 cm homlokzati, 10 cm lábazati, és 25 cm mennyezeti szigetelést fognak kapni, illetve 6 légkamrás 3 rétegű műanyag ablakok biztosítják hogy egészévben meleg/hűvös és takarékosak maradjanak a lakás‼️❄️
Az ingatlant még a maga igényei szerint tudja alakítani mivel az építkezés 2026 Febrárjában fog elkezdődni mint saját beruházás, de ha előbb tulajdonosra találnak akkor előrébb hozzuk az átadást vevő igényei szerint!

✉️
Kérjük, vegye fel velünk a kapcsolatot a helyszíni megtekintés érdekében, és ne habozzon, mert ez a lehetőség hamar elkel!
További adatok
Telekterület: 400 m2
Kert mérete: 400 m2
Erkély mérete: 15 m2
Felszereltség: -
Parkolás: -
Kilátás: -
Egyéb extrák:  
Hirdető adatai
Hirdető neve: Otthon Centrum
Kapcsolattartó: Bezzeg Nikoletta
Hirdető telefonszáma: +36 70 716 8431
Honlap: -
 
Üzenetet küldhet a hirdetőnek, árajánlatot tehet az ingatlanra:
Az Ön neve:
Az Ön e-mail címe:
Üzenet: