Ingatlan Televízió
Ingatlan Televízió
további hirdetések
adatlap bezárása

Siófok 
 

Hivatkozási szám: 5775399
Ingatlan adatai
Irányár: 139 000 000 Ft
Típus: ház
Kategória: eladó
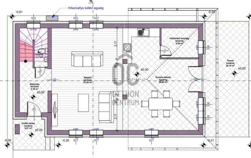
Alapterület: 130 m2
Fűtés: -
Állapota: új
Szobák száma: 4
Építés éve: 2025
Szintek száma: -
Részletes leírás
Eladásra kínáljuk Siófokon 130 m²-es kétszintes családiház projektünket‼️

Aki álmai otthonát keresi Siófokon az most megtálja nálunk amire mindig is vágyott✅️
Most még választható stílusban, lent szerepelt látványtervek alapján!

Ami egy luxury és egy minimalista stílust ábrázol, most még olyanra alakíthatja ingatlanát amilyenre szeretné.

Építkezés kezdete: 2026, Február.
Így még bőven van ideje gondolkozni a befejezésen!.
Az elkezdés követően 4-6 hónapos átadási idővel tudjuk átadni kulcsrakészen a leendő tulajdonosának!

LEIER 30-as zsalukőből, és 30-as Ytong falazatból fog felépülni az ingatlanunk????
Ezen kívül 15-cm-es homlokzati és 10-cm-es lábazati szigeteléssel lesz ellátva otthonunk.
Korszerű hűtés/fűtés amit egy 10 kw-os hőszivattyús rendszer fog ellátni.
Padlófűtés ami garantálja a meleget, ehhez biztosítunk \\\"H\\\" tarifás órát is hogy energiatakarékos maradjon minden évszakban az épület✅️♻️
Az ingatlant még idén van lehetőség foglalózni,
Akár a piac összes hitelprogramjával????

Ajánlat kéréssel kapcsolatos ügyben, vagy ha több információra lenne szüksége kérem keressen a megadott elérhetőségeken✉️
További adatok
Telekterület: 400 m2
Kert mérete: 400 m2
Erkély mérete: 26 m2
Felszereltség: -
Parkolás: -
Kilátás: -
Egyéb extrák:  
Hirdető adatai
Hirdető neve: Otthon Centrum
Kapcsolattartó: Bezzeg Nikoletta
Hirdető telefonszáma: +36 70 716 8431
Honlap: -
 
Üzenetet küldhet a hirdetőnek, árajánlatot tehet az ingatlanra:
Az Ön neve:
Az Ön e-mail címe:
Üzenet: