Ingatlan Televízió
Ingatlan Televízió
további hirdetések
adatlap bezárása

Budapest, XX.kerület 
 

Hivatkozási szám: 5763031
Ingatlan adatai
Irányár: 56 000 000 Ft
Típus: ház
Kategória: eladó
Alapterület: 59 m2
Fűtés: gáz (cirko)
Állapota: -
Szobák száma: 3
Építés éve: 1950
Szintek száma: -
Részletes leírás
XX. kerületben, a Damjanich utcában, eladó Önálló Családi Ház
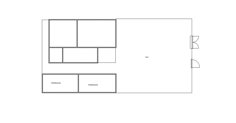
Telek mérete: 230nm
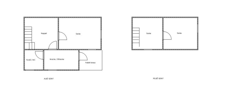
Ház mérete, bruttó: 71,7nm
Alsó szint mérete: 44nm
Felső szint bruttó: 27.7nm
Ház szigetelve
Ablakok műanyag és fa
Fürdőszoba ablakos, konyha ablakos
Nappali + 3 szobás: alsó szinten van a nappali, konyha, fürdőszoba és wc, és egy szoba, a felső szinten van kettő egymásból nyíló szoba
Csendes, kulturált környék
Birtokba adás körülbelül 3 hónap
Kocsival be lehet állni az udvarba
Tágas elszeparált telek, szomszédok nem látnak be
CSAK KÉSZPÉNZES ÜGYFELEK, NEM HITELKÉPES AZ INGATLAN - Ügyintézés elindult, újra kell készíteni a Térképmásolatot !!
További adatok
Telekterület: 230 m2
Kert mérete: 230 m2
Erkély mérete: 4 m2
Felszereltség: -
Parkolás: -
Kilátás: -
Egyéb extrák:  
Hirdető adatai
Hirdető neve: Otthon Centrum
Kapcsolattartó: Váradi Márton
Hirdető telefonszáma: +36 70 465 7036
Honlap: -
 
Üzenetet küldhet a hirdetőnek, árajánlatot tehet az ingatlanra:
Az Ön neve:
Az Ön e-mail címe:
Üzenet: