Ingatlan Televízió
Ingatlan Televízió
további hirdetések
adatlap bezárása

Pilisszentkereszt 
 

Hivatkozási szám: 5751608
Ingatlan adatai
Irányár: 1 800 000 Ft
Típus: ház
Kategória: eladó
Alapterület: 531 m2
Fűtés: -
Állapota: új
Szobák száma: 6
Építés éve: 2024
Szintek száma: 1
Részletes leírás
KIEMELKEDŐ BEFEKTETÉSI LEHETŐSÉG!

Ez a lenyűgöző ingatlan a hegyek ölelésében, Pilisszentkereszt és Dobogókő között található, egy 2230 m2-es telken. A modern luxus a csodás környezet, a friss hegyi levegő és a lélegzetelállító kilátás kombinációjával kínál egy olyan helyet, ahol az ember megpihenhet és élvezheti a természet szépségét.

Az épületben 8 lakosztály kerül kialakításra a tervek szerint, továbbá a telken kettő, míg az épület tetőteraszán további egy darab moduláris ház kap helyet. Az udvarban elhelyezkedő moduláris házak jacuzzival és privát grill terasszal egészülnek ki, az épület tetején pedig a fedett terasz egy wellness részlegnek ad otthont. Az egyik teraszon medence és forró lagúna található, amely 12 férőhelyet biztosít. A modern épületszerkezeti technológiának hála az épület terei könnyedén alakíthatóak, a 4,2 méteres belmagasságot kihasználva a fantáziánkra lesz csupán szükség az alkotáshoz.

A környező hotelek és szállások telítettségét és árait tekintve akár 22%-os évem hozam is elérhető, egy egész évben népszerű, rengeteg lehetőséget biztosító, kivételes területen.
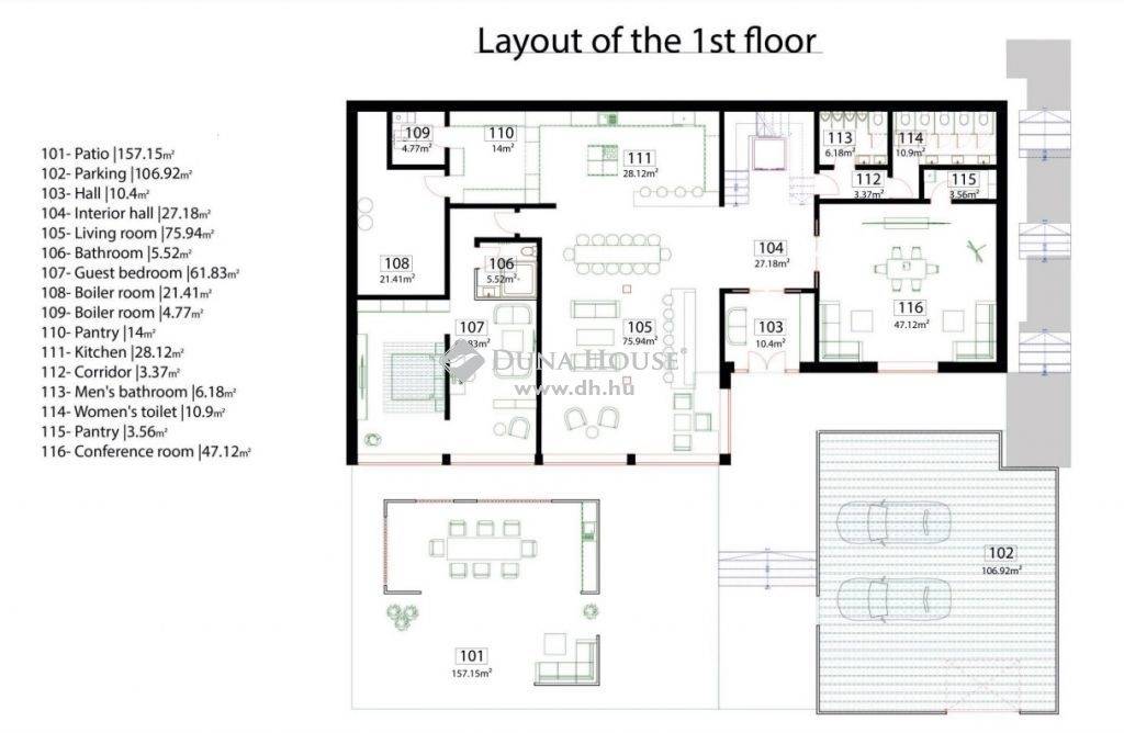
A tervek szerint az alsó szinten fitness- és wellness terem, szauna, zuhanyzó, öltöző, 2 mosdó, gépészeti helyiség, bejárat, gardrób és egy 2 autó számára alkalmas garázs található, összesen 311,47 m2-en.

A kivitelező cég teljes körűen gondoskodik a kulcsra kész állapotról és azt követően akár az üzemeltetésről is.

A ház kivitelezése során a Fachwerk technológiát alkalmazták, amely lehetővé teszi a moduláris építészet és a modern szerkezeti megoldások integrálását, így a ház gyorsan és hatékonyan építhető.



A vendégek számára az utcán 3 autónak van parkolási lehetőség, és az udvaron egy fedett parkoló is kialakítható, amely további 3 autót képes befogadni, összesen 100 m2-en. A fedett parkoló padlófűtéssel rendelkezik.



A kivitelező 25 éves szerkezeti garanciát és 3 éves garanciát vállal az esetleges rejtett hibákra. Az ingatlan elemei első osztályú anyagokból készülnek, betartva a német minőségi szabványokat (DIN 1052) és a CE jelölést, biztosítva a megfelelő tervezést, környezeti biztonságot, magas energiahatékonyságot, valamint tűz- és földrengés-biztonságot.

A lenyűgöző természet és a közeli hegyek, erdők mellett számos túraútvonal vonzza a turistákat egész évben, ami stabil keresletet eredményez a szálláshelyek iránt. Közelsége Budapesthez népszerű kiránduló és pihenő célponttá teszi a gyönyörű környezete és sokféle szabadidős tevékenység révén.

Az ár kulcsra készen 2 500 000 EUR.

Érdeklődése esetén keressen bizalommal!
A Duna House teljes kínálatával kapcsolatban forduljanak hozzám bizalommal!

Bankfüggetlen pénzügyi szakembereink tanácsadással, ügyintézéssel tudják segíteni Önöket álmaik, céljaik megvalósításában!

Vegye igénybe díjmentes konzultációinkat!



https://www.facebook.com/otthonkonnyeden

Referencia szám: HZ090703
További adatok
Telekterület: 2 230 m2
Kert mérete: -
Erkély mérete: 343 m2
Felszereltség: -
Parkolás: utcán, közterületen
Kilátás: -
Egyéb extrák:  
Hirdető adatai
Hirdető neve: dh.hu - Kispest
Kapcsolattartó: Drevnó Béla
Hirdető telefonszáma: +36703077503
Honlap: -
 
Üzenetet küldhet a hirdetőnek, árajánlatot tehet az ingatlanra:
Az Ön neve:
Az Ön e-mail címe:
Üzenet: