Ingatlan Televízió
Ingatlan Televízió
további hirdetések
adatlap bezárása

Pécs 
 

Hivatkozási szám: 5735767
Ingatlan adatai
Irányár: 79 000 000 Ft
Típus: kereskedelmi/ipari ingatlan
Kategória: eladó
Alapterület: 140 m2
Fűtés: -
Állapota: -
Szobák száma: -
Építés éve: -
Szintek száma: -
Részletes leírás
**PÉCSETT ELADÓ KIVÁLÓ BEFEKTETÉSI LEHETŐSÉG: TÖBBFUNKCIÓS INGATLAN A BELVÁROSHOZ KÖZEL!**

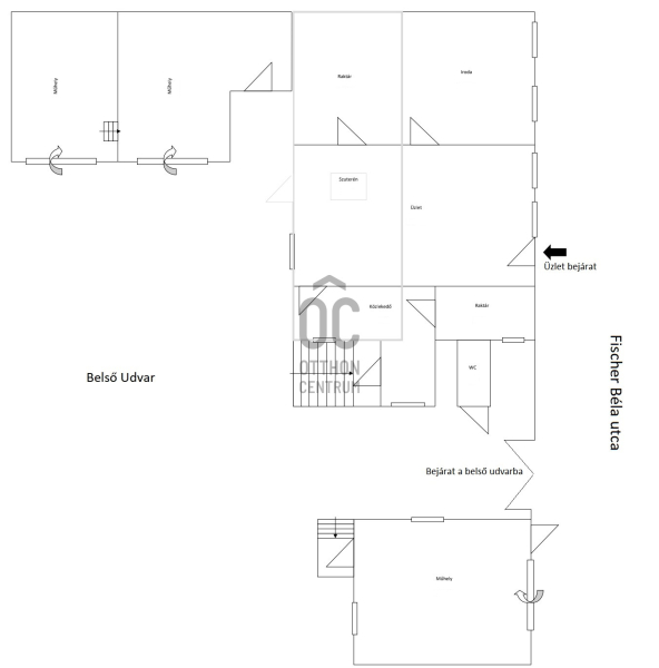
Fedezze fel ezt a REMEK LEHETŐSÉGET Pécs keleti oldalán, ahol egy jó elhelyezkedésű ingatlan várja új tulajdonosát! A 398 m²-es telekterületen egy körülbelül 140 m²-es lakóingatlan található, amely jelenleg ipari ingatlanként funkcionál, de lakóingatlan-ként nyilvántartott. Az ingatlan kiváló LOKÁCIÓVAL büszkélkedhet, hiszen mindössze 2 km-re van a városközponttól.

Az ingatlan megközelítése egyszerű és KÉNYELMES mind gyalogosan, mind gépjárművel. A parkolás az utcában INGYENES. Az ingatlan környezetében minden szükséges KOMMUNÁLIS ellátás megtalálható: iskola, óvoda, üzletközpontok mindössze 1 km-es körzetben helyezkednek el.

Az épület a 2000-es évek elején TELJES FELÚJÍTÁSON esett át, amely magában foglalta a modern tégla falazat és műanyag nyílászárók beépítését, valamint a tetőszerkezet cseréjét is. Az ingatlan összközműves, villany és gáz közművekkel felszerelt. A fűtés gázkonvektorokkal biztosított, a műhelyekben LED világítás gondoskodik a fényről.

A telek egyik fő eleme a 70 m²-es üzlethelyiség, mely többféle célra alkalmas, valamint a három műhely, amelyek együttesen 76 m² alapterülettel rendelkeznek. Az épületekhez tartozik még egy garázs is, míg a 180 m²-es belső udvar ideális legalább három autó tárolására.

Ez az ingatlan nemcsak lakóhelyként, de üzleti célra is REMEKÜL HASZNOSÍTHATÓ, köszönhetően a meglévő infrastrukturális kapacitásainak és a JÓ STRATÉGIAI ELHELYEZKEDÉSÉNEK. Akár befektetésnek, akár saját vállalkozása számára keresi az IDEÁLIS helyet, ebben a lehetőségben minden adottság megvan a sikerhez.

Ne hagyja ki ezt a KIHAGYHATATLAN ajánlatot! Tekintse meg személyesen és fedezze fel a benne rejlő összes lehetőséget!
További adatok
Telekterület: -
Kert mérete: -
Erkély mérete: -
Felszereltség: -
Parkolás: -
Kilátás: -
Egyéb extrák:  
Hirdető adatai
Hirdető neve: Otthon Centrum
Kapcsolattartó: Koczkásné N-R Ágnes
Hirdető telefonszáma: +36 70 388 5636
Honlap: -
 
Üzenetet küldhet a hirdetőnek, árajánlatot tehet az ingatlanra:
Az Ön neve:
Az Ön e-mail címe:
Üzenet: