Ingatlan Televízió
Ingatlan Televízió
további hirdetések
adatlap bezárása

Ajka 
 

Hivatkozási szám: 5724172
Ingatlan adatai
Irányár: 79 000 000 Ft
Típus: ház
Kategória: eladó
Alapterület: 90 m2
Fűtés: -
Állapota: új
Szobák száma: 3
Építés éve: 2025
Szintek száma: -
Részletes leírás
Sikeresen működő, tapasztalt, megbízható kivitelezőtől eladó sorház.

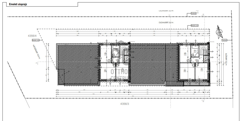
B3 lakás: 89,75 nm, hozzá tartozó telek: 177,65 nm.
Építkezés folyamatban, várható kulcsrakész kivitelezés, átadás 2025. harmadik negyedév.

Lakások műszaki tartalma:
- az épület alápincézetlen 1 illetve 2 szintes lapostetős épület.
- az épület vasalt sávalapokkal lesz alapozva. Az alapok felett lábazati fal készül 30 cm
szélességgel zsalukőből amelyre kifut a vasalt aljzat, betonhálóval. A vasalt aljzatbeton alatt
kavics feltöltés készül, geotextíliára.
- A 1- és 2 szintes épület vb pillérjei, betonfalai szerkezeti méretű oszlopokkal, vasalva,
zsaluzva, illetve esetenként zsalukőből kialakítva.
- Főfalak: 25 és 30 cm-es Porotherm N+F falazattal készülnek.
- Lakáselválasztó falak: Leiertherm 25 cm-es dupla falazat, hangszigeteléssel.
- Áthidalók: monolit és kerámia áthidalók.
- Födém: monolit vasbeton lemezek, szükséges áttörésekkel és attikaképzésekkel.
- Lépcső: monolit vasbeton lépcső amely főfalakra és a födémekre támaszkodik fel.
- Válaszfalak: Leier 10/50 cm-es válaszfaltéglából készülnek.
- Korlátok: a külső erkélykorlátok saválló acél szerkezetek, illetve biztonsági üvegkorlátok
minimum 95 cm magassággal, a kiviteli és a látványterveknek megfelelően. A belső korlátok
saválló acél szerkezetek illetve biztonsági üvegkorlátok.

Bővebb műszaki tartalomról érdeklődjön a megadott elérhetőségeken!

Amennyiben Ön egy igényes ingatlant, kíván vásárolni gyönyörű környezetben, hívjon bizalommal, segítek a gyors, pontos ügyintézésben!
Irodánk teljes körű hitel-, babaváró és CSOK ügyintézéssel, biztosítással, energetikai tanúsítvány készítéssel, valamint megbízható ügyvédi háttérrel segíti ügyfeleit.
Valósítsa meg álmai otthonát velünk!
Projekt bemutatása

Ajka-Bakonygyepesen 9db új építésű sorház Eladó!

Sikeresen működő, tapasztalt, megbízható kivitelezőtől eladó sorház.

Építkezés folyamatban, várható kulcsrakész kivitelezés, átadás 2025. harmadik negyedév.

Lakások műszaki tartalma:
- az épület alápincézetlen 1 illetve 2 szintes lapostetős épület.
- az épület vasalt sávalapokkal lesz alapozva. Az alapok felett lábazati fal készül 30 cm
szélességgel zsalukőből amelyre kifut a vasalt aljzat, betonhálóval. A vasalt aljzatbeton alatt
kavics feltöltés készül, geotextíliára.
- A 1- és 2 szintes épület vb pillérjei, betonfalai szerkezeti méretű oszlopokkal, vasalva,
zsaluzva, illetve esetenként zsalukőből kialakítva.
- Főfalak: 25 és 30 cm-es Porotherm N+F falazattal készülnek.
- Lakáselválasztó falak: Leiertherm 25 cm-es dupla falazat, hangszigeteléssel.
- Áthidalók: monolit és kerámia áthidalók.
- Födém: monolit vasbeton lemezek, szükséges áttörésekkel és attikaképzésekkel.
- Lépcső: monolit vasbeton lépcső amely főfalakra és a födémekre támaszkodik fel.
- Válaszfalak: Leier 10/50 cm-es válaszfaltéglából készülnek.
- Korlátok: a külső erkélykorlátok saválló acél szerkezetek, illetve biztonsági üvegkorlátok
minimum 95 cm magassággal, a kiviteli és a látványterveknek megfelelően. A belső korlátok
saválló acél szerkezetek illetve biztonsági üvegkorlátok.

Bővebb műszaki tartalomról érdeklődjön a megadott elérhetőségeken!

Amennyiben Ön egy igényes ingatlant, kíván vásárolni gyönyörű környezetben, hívjon bizalommal, segítek a gyors, pontos ügyintézésben!
Irodánk teljes körű hitel-, babaváró és CSOK ügyintézéssel, biztosítással, energetikai tanúsítvány készítéssel, valamint megbízható ügyvédi háttérrel segíti ügyfeleit.
Valósítsa meg álmai otthonát velünk!
További adatok
Telekterület: 178 m2
Kert mérete: 178 m2
Erkély mérete: 20 m2
Felszereltség: -
Parkolás: -
Kilátás: -
Egyéb extrák:  
Hirdető adatai
Hirdető neve: Otthon Centrum
Kapcsolattartó: Szabó Attila
Hirdető telefonszáma: +36 70 412 3461
Honlap: -
 
Üzenetet küldhet a hirdetőnek, árajánlatot tehet az ingatlanra:
Az Ön neve:
Az Ön e-mail címe:
Üzenet: